Setüstü 11

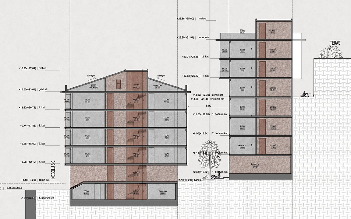
Kabataş, Setüstü boğaz siluetinde yer alan projede, içerisinde yaklaşık 20m eğim bulunan alan üzerinde tek girişli olarak 2 farklı yapı kütlesi tasarlanmıştır. Boğaz siluetinde yer alan bitişik nizamlı, yol ile ilişkili yapı, ticaret fonksiyonlu olarak tasarlanmış olup, zemin katta bıraktığı pasaj ile parselin arka kısmına konumlandırılan müstakil yapıya ulaşım sağlanmaktadır. Yaklaşık 20m yüksekliğe yerleşen yapı, kot farkından yararlanmak suretiyle taraçalandırılarak teraslı konutlara evrilmiştir.